Startseite Wohnung mieten Green Corner Green Corner | Top 1

Green Corner

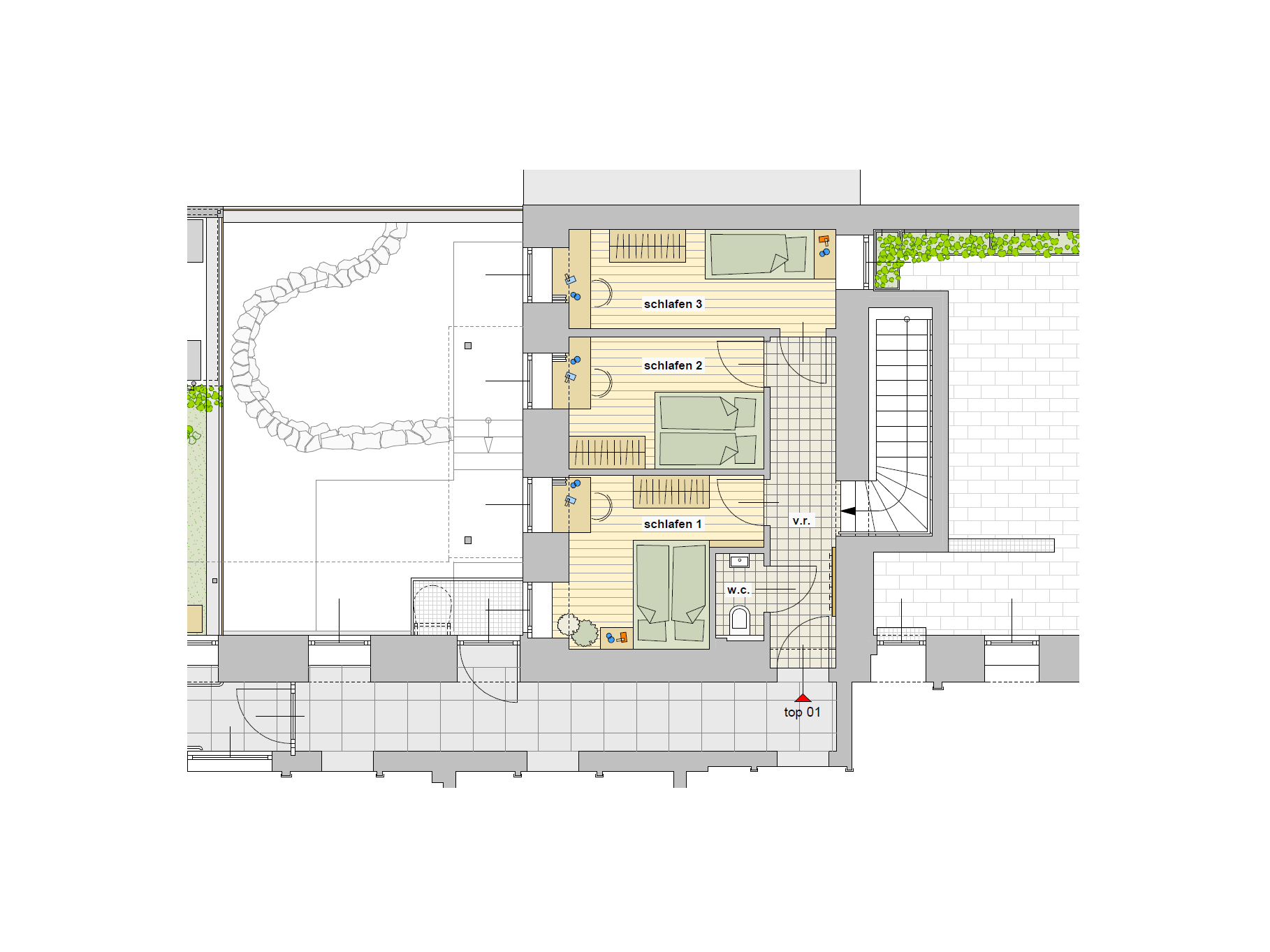
Green Corner | Top 1

Leystraße 81 1200 Wien

Wohnfläche

94,29 m2

Zimmer

5

Mietpreis

€ 1.750,00

Beziehbar 01.04.2026
Zustand saniert
Befristung 5 Jahre
Kaution € 8.000,00
Stockwerk Gartengeschoß
Heizungsart Fernwärme
HWB 48,63 kWh/m2a
Energieeffizienzklasse C
fGEE 1,05
Einbauküche vorhanden
Kellerabteil vorhanden
Lift vorhanden

Details

Das Objekt "Green Corner" in der Leystraße 81 in Wien Brigittenau ist ein vierstöckiger charmant sanierter Altbau mit Dachgeschoßausbau, sonnigen Freiflächen, einem liebevoll begrünten Innenhof mit Spielplatz und einer begrünten Fassade.

Eckig und schräg ist in diesem besonderen Wohnprojekt bei den Dachgeschoßwohnungen nur der Name. Erstmals können wir Ihnen Terrassenträume und Dachgartenrefugien ohne eine einzige Dachschräge anbieten. Durch die luftige Grundrissplanung entsteht hier ein Mehrraumgefühl der besonderen Art. Sie werden in dieser Lage kein vergleichbares Wohngefühl unter dem Dach finden. Lassen Sie sich daher nicht von den für Dachwohnungen eher kleiner gehaltenen Größen unter 100m² in die Irre führen. "Green Corner" bietet nicht nur ein Mehrraumgefühl, sondern bis ins kleinste Detail tatsächlich nutzbare Fläche und hält damit in jeder Hinsicht mit wesentlich größeren Vergleichswohnungen mit. Nur eine Ausnahme gibt es: Dachwohnungen in Ulreich-Projekten sind keine Hitzezentren, sondern dank unseren ausgeklügelten und ökologisch nachhaltigen Techniksystemen in jeder Jahreszeit eine wohl temperierte Wohnoase.

Aufteilung

Aussenfläche

Terrasse 16,06 m2
Garten 21,78 m2
Summe 37,84 m2

Virtueller Rundgang

Ausstattung

Lage

Die S-Bahnstation Traisengasse ist 2 Gehminuten, die U6-Station Dresdner Straße und Handelskai sind jeweils ca. 7 Gehminuten entfernt. In unmittelbarer Umgebung befinden sich ein Merkur Supermarkt, das Lorenz-Böhler Unfallkrankenhaus, eine Apotheke, Cafés und Parks. Das Shoppingcenter Millennium City mit zahlreichen Einkaufsmöglichkeiten, einem Kino und Fitnessstudio und das Naherholungsgebiet Donauinsel sind in weniger als 10 Gehminuten erreichbar.

Über Ulreich Bauträger

Ulreich Bauträger ist ein vom Gründer geführter und mit zahlreichen Preisen ausgezeichneter Familienbetrieb mit mehr als 25 Jahren Erfahrung.


Wir verwalten alle unsere Häuser selbst und es bleiben in jedem Objekt einige Wohnungen zur Vermietung im Firmenbesitz. Dadurch bleiben wir mit unserem Service und Know-How an Ihrer Seite und die Qualität und Lebensdauer Ihrer Immobilie ist auch für uns eine persönliche Angelegenheit. Machen Sie sich ein Bild von unseren hohen Qualitätsmaßstäben – bei der Projektausführung ebenso wie beim Service!

Wir „verwalten“ nicht, wir managen und unterstützen Sie mit unserem Wissen nach bestem Maß und stehen Ihnen als Ansprechpartner bei Ihren Anliegen zur Seite! Und das nicht nur bis zum Vertragsabschluss. Da wir die von uns gebauten Objekte selbst verwalten, sind wir als Experten für das Projekt auch nach dem Einzug bei sämtlichen Fragen für Sie da. Damit können wir den Erhalt unserer Objekte und die reibungslose Nutzung im Interesse aller gewährleisten. Unser Team steht allen unseren Kund:innen zur Seite, egal ob Mieter-, Anleger-, oder Eigennutzer:innen.

Kontakt

    * Pflichtfelder

    Green Corner | Top 1

    Ihre Ansprechpartnerin für die Miete

    Sara Ulreich

    Für alle Fragen rund um neue Projekte, zu Miete und Ausstattung kontaktieren Sie mich bitte:

    Weitere Objekte an diesem Standort

    Mietwohnungen
    Objektart PLZ / Straße Etage Top Fläche Zimmer Freiflächen Beziehbar Gesamtmiete
    Wohnung
    Leystraße 81 1200 Wien
    Gartengeschoß 7 93,04 m2 5 34,61 m2 01.03.2026 € 1.590,00

    Derzeit gibt es keine weiteren freien Objekte in dieser Immobilie.
    Gern können Sie uns bezüglich passender Objekte kontaktieren.